Neuf

Filtres Compacts avec Trémie - COIMA

  • Exclusivité web
  • Nouveau
FC 250/FC 320/FC 380/FC 450
search
  • FC 250/FC 320/FC 380/FC 450
  • FC 250/FC 320/FC 380/FC 450
  • FC 250/FC 320/FC 380/FC 450
Prix

Nous consulter

référence interne
FC 250/FC 320/FC 380/FC 450
Statut
sur demande
Etat
Matériel Neuf

Gamme de filtres compacts pour aspiration copeaux/poussières : chambre de décantation, flap anti-retour, filtres manches ou cartouches ATEX. Nettoyage air comprimé, ventilateur insonorisé, vidange bidons ou trémie avec écluse rotative. Option extinction incendie.

Invitation à nous consulter (Prix, délais, options, conception sur mesure)

Quantité


DESCRIPTION

Une solution fiable avec un encombrement réduit

Notre gamme de filtres compacts a été optimisée pour offrir une efficacité maximale dans un format réduit. Idéale pour l'aspiration de copeaux et poussières de taille moyenne à petite, elle peut s'installer en intérieur. Conçue pour fonctionner en pression négative, elle atteint des performances supérieures tout en restant très silencieuse.

Une conception robuste et intelligente

L'unité est construite avec des panneaux en acier galvanisé et peint. Elle est équipée d'une chambre de décantation qui ralentit l'air à l'entrée et protège les filtres des chutes de particules, augmentant leur durée de vie. Un flap anti-retour évite le retour de poussière dans l'atelier.

FILTRES COMPACTS, ÉLÉGANTS ET SILENCIEUX VERSION AVEC TRÉMIE

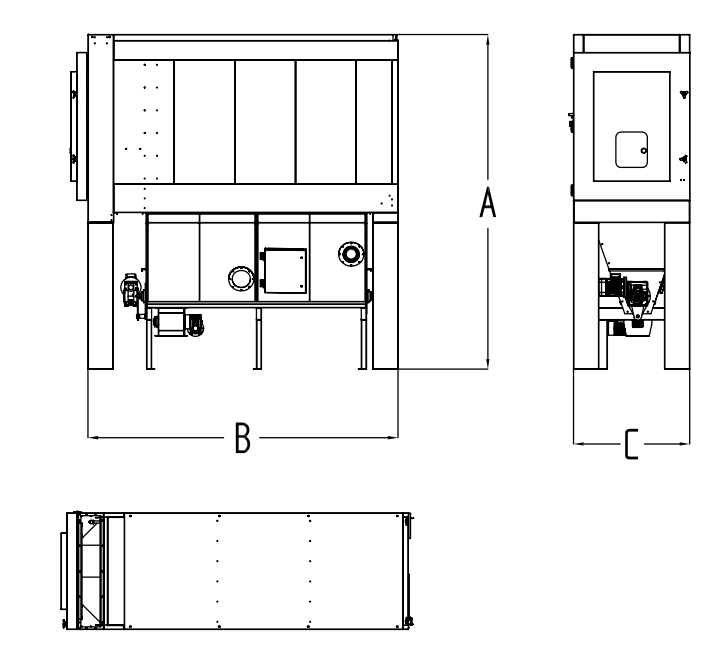
DONNÉES TECHNIQUES

ModelesFC 250FC 320FC 380FC 450
PRESSION [MMH2O]300300350280
DÉBIT [M³/H]4.0006.0008.00012.000
PUISSANCE ASPIRATEUR [KW]5,57,51115
SURFACE FILTRANT [M²]2030144162
N. DES MANCHES FILTRANTES40603236
DIMENSIONS DES MANCHES [MM]Ø125x1300Ø125x1300Ø144x1200Ø144x1200
LONGUEUR X LARGEUR X HAUTEUR [MM]2325x11003500x11003500x11003500x1100
HAUTEUR [MM]3650 sans Vis sans fin - 3310 avec Vis sans fin
HAUTEUR AVEC BIG-BAG [MM]4750 sans Vis sans fin - 4300 avec Vis sans fin
BRUIT [DB(A)]75758080
DIAMÈTRE D’ENTRÉE D’AIR [MM]250320380450
CAPACITÉ DE DÉCHARGE [M³/H]1-2
  • 1000 caractères maximum